Sold for $685,000


  • 3
  • 1
  • 1

Serene Family Home

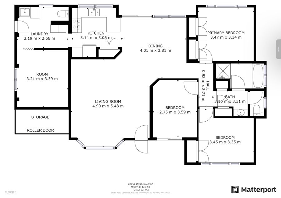
Lovingly looked after for the last 17 years by the current owners, this property needs a new family to move in and enjoy the outlook, privacy and ideal location that this home offers.

Enter straight into the large loungeroom with beautiful timber floating flooring, a brand new air conditioning unit and ceiling fan. Flowing on from here you have the generous dining room with sliding door leading to the private rear yard which is fully fenced with garden sheds, tiered gardens and an outdoor entertaining area that can be enjoyed all year round.

Adjacent to the dining area you will find the kitchen that was renovated a few years ago. It features breakfast bar with lovely grey stone benchtop, electric wall oven and cooktop, plus large two door pantry with enough space for the groceries as well as the electrical appliances. Move through the kitchen to the laundry with second toilet, and into the single lock up garage which has been converted to a bedroom, keep it as is for that extra room, or easily convert back to a garage for parking and storage.

The carpeted bedrooms are located to the right of the home, they all have ceiling fans and two have built in wardrobes. Easily accessible from the bedrooms is the three-way bathroom, which is great for families needing different zones of the bathroom to get ready in the morning rush.

Situated within minutes to Boambee IGA shopping centre, local schools and only a short drive to beautiful Sawtell beach this house will be sure to please first home buyers, downsizers and investors.

Features
Renovated kitchen with Westinghouse wall oven, Simpson electric cooktop, Stone benchtop
Brand new Mitsubishi Air conditioner in the loungeroom
Vertical Blinds
NBN
Extra toilet located in the laundry
Zoned for Boambee Public School
Electric hot water system

Located
Approx. 600m to Boambee IGA Shopping Centre
Approx. 1.8km to Toormina High School
Approx. 2.1km to Boambee Public School
Approx. 2.1km to Toormina Gardens Shopping Centre
Approx. 4.7km to Sawtell Beach

unre.com.au/ibi41
RATES: $2,993.78 pa (Approx) LAND SIZE: 751.8 sqm (Approx) BUILT: 1995 (Approx)
Whilst every care has been taken in respect of the information contained herein no warranty is given as to the accuracy and prospective purchasers should rely on their own enquiries.

Contact The Agent

Kim McGinty

Sales Manager & Licensed Real Estate Agent
0432 953 796
02 6658 6042
Email Agent
View My Properties

Chris Hines

Managing Director
0439 667 719
02 6658 6042
Email Agent
View My Properties
Land Size 751.8 Square Mtr approx.
Rates $2,993.78 Annually

Brochure

Share

Talk with an agent: 02 6658 6042

Connect with us

Unrealestate Coffs Coast

Address

Unrealestate Coffs Coast
137 Sawtell Rd
Toormina, NSW 2452

Unrealestate Coffs Coast 2026 | Privacy | Marketing by Real Estate Australia and ReNet Real Estate Software