Sold for $370,000


  • 3
  • 1
  • 3

Level, Location + Workshop

Finding a level home with good vehicle storage plus a workshop can be difficult enough, locating one in this price range within comfortable walking distance of the water is tougher still. Around the corner from Boambee Creek Reserve and within a three minute drive of Toormina Gardens, this level home is a great size, has good bones and is ready for your interior makeover.

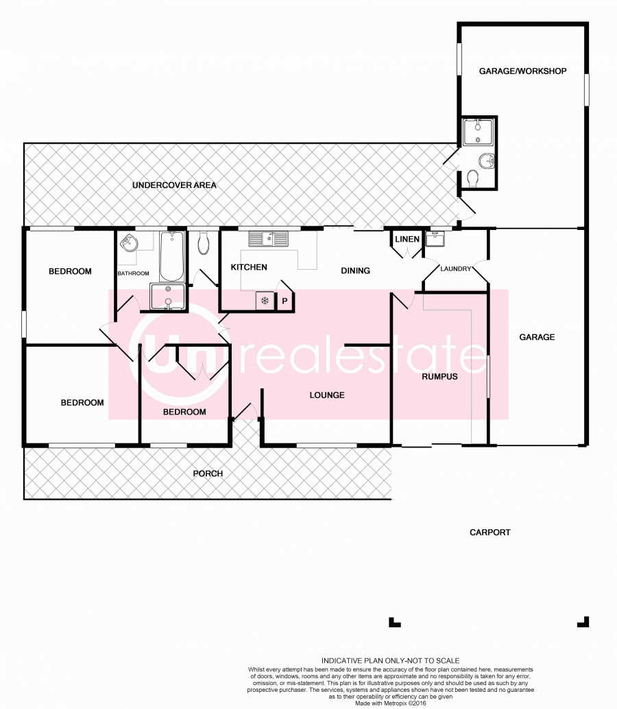
Extra vehicles to store or perhaps a kayak or stand up paddle board? No problem - the property has a wide carport at the front leading through to a single garage. Beyond this is the ideal BIG workshop space or use the area to house those extra vehicles or toys that you don't use every day. The other bonus is the extra toilet which adjoins the workshop, with access from the back yard. There's also a shower recess here which needs a revamp.

Located on a generous and level block which backs onto Boambee Gardens Retirement Village, the interior of this home may be older style but it is absolutely as neat as a pin and has some of the additional features which make life more comfortable, like reverse cycle air conditioning, fans and even a dishwasher. Eleven solar panels on the workshop roof are another huge bonus equating to savings on your electricity bill. This is the kind of home you could comfortably move in and update room by room as the budget allowed.

Covered house entry from the carport leads into the good-sized carpeted living room, which has a lovely big window, while the eat-in-kitchen/dining area is beyond. All three bedrooms, the separate toilet and good sized bathroom are in one wing of the home off a wide hall and one of the bedrooms has a built-in cupboard.

The second living area or fourth bedroom is located on the other side of the living spaces. Ideal for guests and quite ingenious for its time, is the in-built bed in a wall, there's also an integrated filing cabinet, study in a cupboard and additional storage. This room has the added bonus of a sliding door to the front of the property, perfect if you're using the room as a second living area or perhaps a work from home zone.

The current owner has extended the kitchen to afford more bench space and storage and he has succeeded with both aims, there's also an upright cooker, plenty of overhead cupboards and a good-sized pantry. On the other side of the dining room there's another double cupboard which could serve as storage for your appliances or alternately work as a great linen press, considering the next room is the laundry.

Out the back the property has a deep undercover verandah, a potting shed with a tank and an arbour in the garden beyond.

This really is one of those properties with great infrastructure, lots of potential and it's level! Combine this with the fact it's in a really convenient location and it has great appeal, particularly in this price range.

RATES:$2626.24 per annum LAND SIZE: 844.1 sqm BUILT: 1978
www.unre.com.au/wer19
Whilst every care has been taken in respect of the information contained herein no warranty is given as to the accuracy and prospective purchasers should rely on their own enquiries.

Contact The Agent

Kim McGinty

Sales Manager & Licensed Real Estate Agent
0432 953 796
02 6658 6042
Email Agent
View My Properties

Chris Hines

Managing Director
0439 667 719
02 6658 6042
Email Agent
View My Properties
Land Size 844.1 Square Mtr approx.
Rates $2626.24

Brochure

Share

Talk with an agent: 02 6658 6042

Connect with us

Unrealestate Coffs Coast

Address

Unrealestate Coffs Coast
137 Sawtell Rd
Toormina, NSW 2452

Unrealestate Coffs Coast 2026 | Privacy | Marketing by Real Estate Australia and ReNet Real Estate Software